$749,990
2,005
SQ FT
$374
SQ/FT
198 Cartier Street
@ Datura - American Canyon
- 3 Bed
- 3 (2/1) Bath
- 2 Park
- 2,005 sqft
- American Canyon
-
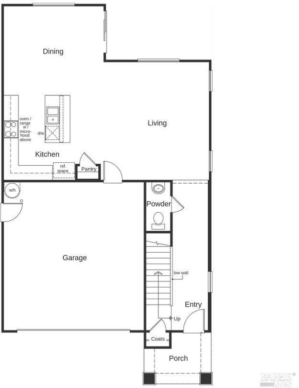
Under Construction - This inviting two-story home offers 9-ft. ceilings, a welcoming powder room, and distinct dining and living areas designed for everyday comfort and entertaining. The kitchen features a central island overlooking the living space, creating an ideal setting for gatherings. Upstairs, you'll find a versatile loft and a convenient dedicated laundry room. The spacious primary suite includes a generous walk-in closet, while the bath offers a dual vanity and a large linen closet for added storage. Energy-efficient highlights include low-E windows, WaterSense® fixtures, a smart thermostat, an electric water heater, and a Whirlpool® appliance package. While construction is underway, you have a special opportunity to personalize select design features such as cabinetry, countertops, and flooring. Located in Serrano at Watson Ranch, this thoughtfully planned community features parks, scenic trails, a future town center, and a planned elementary school, with convenient access to Napa Valley Wine Country, outdoor recreation, dining, and major highways.
- Days on Market
- 13 days
- Current Status
- Active
- Original Price
- $749,990
- List Price
- $749,990
- On Market Date
- Jan 5, 2026
- Property Type
- Single Family Residence
- Area
- American Canyon
- Zip Code
- 94503
- MLS ID
- 326000662
- APN
- 059-491-024-000
- Year Built
- 0
- Stories in Building
- Unavailable
- Possession
- Close Of Escrow
- Data Source
- BAREIS
- Origin MLS System
Napa Junction Elementary School
Public PK-5 Elementary
Students: 409 Distance: 0.7mi
Calvary Baptist Christian Academy
Private K-12 Combined Elementary And Secondary, Religious, Coed
Students: 47 Distance: 0.7mi
Calvary Baptist Christian Academy
Private K-12 Religious, Nonprofit
Students: 57 Distance: 0.7mi
Canyon Oaks Elementary School
Public K-5 Elementary
Students: 682 Distance: 1.1mi
Legacy High
Public 9-12
Students: 20 Distance: 1.2mi
American Canyon High School
Public 9-12
Students: 1617 Distance: 1.2mi
- Bed
- 3
- Bath
- 3 (2/1)
- Parking
- 2
- Attached
- SQ FT
- 2,005
- SQ FT Source
- Builder
- Lot SQ FT
- 3,872.0
- Lot Acres
- 0.0889 Acres
- Cooling
- Central
- Heating
- Central
- Laundry
- Inside Room
- Upper Level
- Bedroom(s), Full Bath(s), Loft, Primary Bedroom
- Main Level
- Dining Room, Family Room, Kitchen, Partial Bath(s), Street Entrance
- Possession
- Close Of Escrow
- * Fee
- $165
- Name
- Watson Ranch Owners Association
- Phone
- (800) 443-5746
- *Fee includes
- Common Areas and Other
MLS and other Information regarding properties for sale as shown in Theo have been obtained from various sources such as sellers, public records, agents and other third parties. This information may relate to the condition of the property, permitted or unpermitted uses, zoning, square footage, lot size/acreage or other matters affecting value or desirability. Unless otherwise indicated in writing, neither brokers, agents nor Theo have verified, or will verify, such information. If any such information is important to buyer in determining whether to buy, the price to pay or intended use of the property, buyer is urged to conduct their own investigation with qualified professionals, satisfy themselves with respect to that information, and to rely solely on the results of that investigation.
School data provided by GreatSchools. School service boundaries are intended to be used as reference only. To verify enrollment eligibility for a property, contact the school directly.




