$998,000
2,220
SQ FT
$450
SQ/FT
16 Castlewood Drive
@ Foothill Rd - 3800 - Sunol, Pleasanton
- 4 Bed
- 3 Bath
- 2 Park
- 2,220 sqft
- PLEASANTON
-
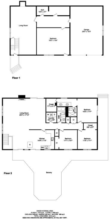
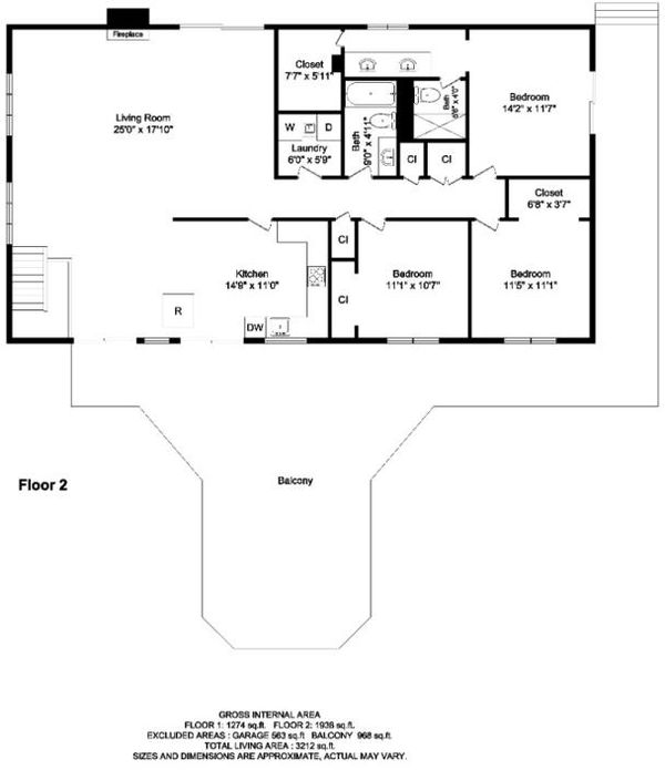
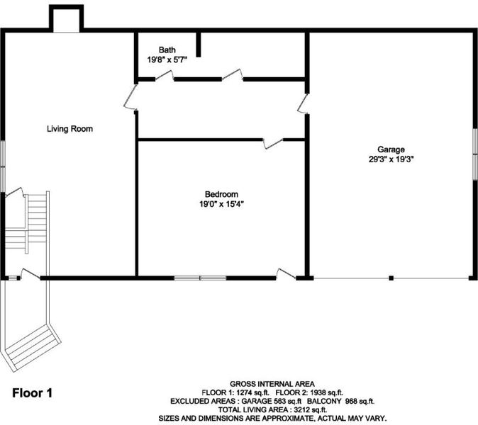
Opportunity knocks at 16 Castlewood Drive - a true fixer-upper located in Pleasanton's highly desirable and well-established Castlewood Community. Bring your tools, creativity, and vision! Offered as-is, this property is ideal for contractors, investors, or savvy buyers seeking a renovation project with strong potential to build equity. The home features great bones and a functional layout. The main level includes a spacious kitchen, dining room, and an expansive living room with vaulted ceilings, along with a laundry room, three generously sized bedrooms, and two full bathrooms. The lower level offers an additional living area, one full bathroom, and a possible fourth bedroom, plus a two-car garage. Enjoy a private backyard with ample space for outdoor dining, gardening, or relaxation. Conveniently located with easy access to I-580 and I-680, and just minutes from Downtown Pleasanton, shopping, dining, and other modern conveniences.
- Days on Market
- 12 days
- Current Status
- Active
- Original Price
- $998,000
- List Price
- $998,000
- On Market Date
- Jan 6, 2026
- Property Type
- Single Family Home
- Area
- 3800 - Sunol
- Zip Code
- 94566
- MLS ID
- ML82030346
- APN
- 946-4406-023-03
- Year Built
- 1964
- Stories in Building
- Unavailable
- Possession
- Unavailable
- Data Source
- MLSL
- Origin MLS System
- MLSListings, Inc.
Phoebe Apperson Hearst Elementary School
Public K-5 Elementary
Students: 705 Distance: 1.3mi
Pleasanton Middle School
Public 6-8 Middle
Students: 1215 Distance: 1.6mi
Village High School
Public 9-12 Continuation
Students: 113 Distance: 1.7mi
Pleasanton Adult And Career Education
Public n/a Adult Education
Students: NA Distance: 1.7mi
Lighthouse Baptist School
Private K-12 Combined Elementary And Secondary, Religious, Nonprofit
Students: 23 Distance: 2.0mi
The Child Day Schools, Pleasanton
Private PK-5 Coed
Students: 80 Distance: 2.1mi
- Bed
- 4
- Bath
- 3
- Parking
- 2
- Attached Garage
- SQ FT
- 2,220
- SQ FT Source
- Unavailable
- Lot SQ FT
- 14,880.0
- Lot Acres
- 0.341598 Acres
- Cooling
- Window / Wall Unit
- Dining Room
- Dining Area
- Disclosures
- Natural Hazard Disclosure
- Family Room
- No Family Room
- Foundation
- Concrete Slab
- Fire Place
- Living Room
- Heating
- Central Forced Air
- * Fee
- $25
- Name
- CASTLEWOOD PROPERTY OWNERS ASSOCIATION
- *Fee includes
- Management Fee
MLS and other Information regarding properties for sale as shown in Theo have been obtained from various sources such as sellers, public records, agents and other third parties. This information may relate to the condition of the property, permitted or unpermitted uses, zoning, square footage, lot size/acreage or other matters affecting value or desirability. Unless otherwise indicated in writing, neither brokers, agents nor Theo have verified, or will verify, such information. If any such information is important to buyer in determining whether to buy, the price to pay or intended use of the property, buyer is urged to conduct their own investigation with qualified professionals, satisfy themselves with respect to that information, and to rely solely on the results of that investigation.
School data provided by GreatSchools. School service boundaries are intended to be used as reference only. To verify enrollment eligibility for a property, contact the school directly.

























































